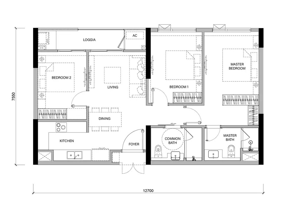
Căn hộ 3 phòng ngủ (3PN) Orchard Collection by Sycamore Capita Land là dòng sản phẩm Ultra Luxury hiếm với thiết kế mid-rise 10 tầng, không gian rộng, riêng tư và chuẩn nghỉ dưỡng.
Căn hộ 3 phòng ngủ (3PN) Orchard Collection phù hợp cho gia đình thành đạt vừa an cư đẳng cấp vừa đầu tư dài hạn.
Căn hộ 3 phòng ngủ (3PN) Orchard Collection by Sycamore CapitaLand – không gian sống Ultra Luxury biệt lập, thiết kế mid-rise hiếm có, tiện ích chuẩn resort và tiềm năng tăng giá vượt trội tại trung tâm Thành phố mới Bình Dương.
Chuẩn sống Ultra Luxury – Không gian dành riêng cho cộng đồng tinh hoa
Căn hộ 3 phòng ngủ (3PN) Orchard Collection by Sycamore CapitaLand là biểu tượng của phong cách sống thượng lưu giữa lòng Thành phố mới Bình Dương. Được định vị là phân khu cao cấp nhất thuộc đại đô thị Sycamore, dự án mang đến trải nghiệm sống biệt lập, mật độ thấp và hệ sinh thái tiện ích chuẩn quốc tế dành riêng cho giới tinh hoa.
Căn hộ 3PN Orchard Collection được phát triển hướng đến nhóm khách hàng gia đình thành đạt, đề cao sự riêng tư và chất lượng sống:
Mỗi căn hộ là một “resort thu nhỏ”, nơi thiên nhiên và kiến trúc hòa quyện, mang lại cảm giác nghỉ dưỡng mỗi ngày.
Tọa lạc tại lô B15 trong nội khu Sycamore, Orchard Collection sở hữu vị trí đắt giá bậc nhất khu vực:
Vị trí này không chỉ mang lại sự thuận tiện trong di chuyển mà còn đảm bảo tiềm năng tăng giá bền vững trong dài hạn.
Orchard Collection kiến tạo hệ sinh thái tiện ích vượt chuẩn, chia thành 2 phân khu đẳng cấp:
Maison – Chăm sóc sức khỏe:
Couture – Giải trí & giao lưu:
Ngoài ra, cư dân còn tận hưởng:
Tất cả tạo nên một chuẩn sống nghỉ dưỡng thực thụ ngay tại nhà.
Khác biệt hoàn toàn so với các dự án cao tầng, Orchard Collection chỉ cao 10 tầng:
Đây chính là yếu tố làm nên giá trị độc bản và sự khan hiếm của dòng sản phẩm 3PN tại dự án.
Căn hộ 3PN Orchard Collection thừa hưởng toàn bộ hệ sinh thái xung quanh:
Cư dân vừa tận hưởng không gian sống yên tĩnh, vừa dễ dàng tiếp cận mọi tiện ích hiện đại.
Sản phẩm 3PN tại Orchard Collection hội tụ đầy đủ yếu tố tăng giá:
Đây là dòng sản phẩm vừa phù hợp an cư cao cấp, vừa có giá trị đầu tư dài hạn bền vững.
Căn hộ 3 phòng ngủ (3PN) Orchard Collection không chỉ là nơi ở mà còn là biểu tượng của phong cách sống thượng lưu, riêng tư và khác biệt. Với thiết kế độc bản, tiện ích vượt chuẩn và vị trí chiến lược, đây chính là lựa chọn lý tưởng cho những khách hàng đang tìm kiếm giá trị sống đích thực và tài sản tích lũy lâu dài.
Dự án Orchard Collection được định vị là phân khu căn hộ Ultra Luxury – phân khúc cao cấp nhất và cũng là mảnh ghép cuối cùng hoàn thiện toàn bộ siêu dự án Sycamore Bình Dương do liên doanh CapitaLand phát triển. Sở hữu quỹ đất đắt giá rộng khoảng 34.000m² tại trung tâm Thành phố mới, nhưng với thiết kế kiến trúc trung tầng (Mid-rise) giới hạn chỉ 10 tầng, dự án hứa hẹn mang lại một không gian sống sinh thái biệt lập, kiến tạo đặc quyền đẳng cấp vượt trội dành riêng cho cộng đồng tinh hoa.
Tọa lạc ngay mặt tiền đại lộ Hùng Vương – trục giao thông huyết mạch của phường Bình Dương, TP. HCM, Orchard Collection sở hữu một trong những vị trí chiến lược bậc nhất trong khu vực. Đây là nơi hội tụ các trục kết nối liên vùng trọng điểm, kết nối nhanh chóng đến TP. Thủ Đức qua Quốc lộ 13 chỉ trong 40 phút và đến trung tâm TP.HCM trong khoảng một giờ thông qua cao tốc Mỹ Phước – Tân Vạn mới đưa vào vận hành.
Tọa lạc trên trục đại lộ Hùng Vương – tuyến giao thông huyết mạch của Phường Bình Dương, Orchard Collection Grand thừa hưởng hệ thống kết nối vùng hiện đại, di chuyển linh hoạt giữa các đô thị lớn và các khu công nghiệp trọng điểm.
Orchard Collection Grand còn là trạm trung chuyển chiến lược, kết nối cư dân tinh hoa đến mọi trung tâm kinh tế – thương mại – công nghệ tại miền Nam chỉ trong vài bước chân.
| Tên dự án | Orchard Collection |
| Vị trí dự án | Đại lộ Hùng Vương, Phường Bình Dương, TP. HCM |
| Chủ đầu tư | CapitaLand Development |
| Diện tích | 8.501 m² |
| Quy mô | 2 tòa tháp cao 24 tầng – 517 căn hộ
|
| Loại hình | Khu compound khép kín |
| Dòng sản phẩm |
|
| Thiết kế |
|
| Pháp lý |
|
Cập nhật giá bán căn hộ Orchard Collecion by Sycamore Capita Land mới nhất.
| Căn hộ 1PN Orchard Collecion | đang cập nhật… |
| Căn hộ 2PN Orchard Collecion | đang cập nhật… |
| Căn hộ 3PN Orchard Collecion | đang cập nhật… |
| Căn hộ 4PN Orchard Collecion |
đang cập nhật… |
| Duplex Orchard Collecion |
đang cập nhật… |
| Penthouse Orchard Collecion | đang cập nhật… |
Vui lòng nhập tên người dùng hoặc địa chỉ email của bạn. Bạn sẽ nhận được một liên kết để tạo mật khẩu mới qua email.
TẢI BẢNG GIÁ CHI TIẾT